







2 camere semidecomandat 82 mp, zona Mosilor
Bucuresti, Mosilor
220.000€
Camere
2
Suprafata utila
82 mp
Etaj
Demisol
Bai
1
An constructie
2010
- ID:P9439
- Nr. camere:2
- S. utila:82.00 mp
- Comp.:Semidecomandat
- Confort:1
- Etaj:Demisol
- Nr. bucatarii:1
- Nr. bai:1
- An constructie:2010
- Structura:Beton
- Tip imobil:Bloc
- Regim inaltime:D+P+3
- Clasa energetica:A
Descriere
R.E.A. IMOBILIARE
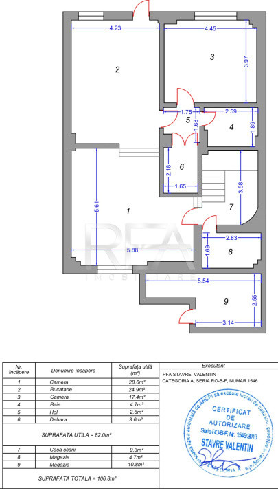
Va ofera spre vanzare 2 camere semidecomandat 82 mp, zona Mosilori, la demisol înalt, situat într-un bloc de 5 etaje, având câte un apartament pe fiecare etaj, prevăzut cu lift pe casa scării. Apartamentul dispune de o curte interioară comună cu apartamentul de la parter, are un living spatios de 28,6 mp, o camera de 17,4mp, bucatarie de 24,9mp, baie, hol si debara. Se vinde complet mobilat și utilat si beneficiaza de doua spatii de depozitare(magazii) cu o suprafata utila de 15,5mp. Apartamentul este la 6 minute de mers pe jos până la metrou Bucur Obor si la 3 minute de statii STB. în proximitate, se găsesc gradinite, școli, licee, restaurante și cafenele. Pentru detalii si vizionari, va rugam sa ne contactati, specificand codul de identificare P9439.
Citeste mai mult
Va ofera spre vanzare 2 camere semidecomandat 82 mp, zona Mosilori, la demisol înalt, situat într-un bloc de 5 etaje, având câte un apartament pe fiecare etaj, prevăzut cu lift pe casa scării. Apartamentul dispune de o curte interioară comună cu apartamentul de la parter, are un living spatios de 28,6 mp, o camera de 17,4mp, bucatarie de 24,9mp, baie, hol si debara. Se vinde complet mobilat și utilat si beneficiaza de doua spatii de depozitare(magazii) cu o suprafata utila de 15,5mp. Apartamentul este la 6 minute de mers pe jos până la metrou Bucur Obor si la 3 minute de statii STB. în proximitate, se găsesc gradinite, școli, licee, restaurante și cafenele. Pentru detalii si vizionari, va rugam sa ne contactati, specificand codul de identificare P9439.
Specificatii
Curent
Apa
Canalizare
Curent trifazic
Telefon
Acces internet
Fibra optica
Centrala proprie
Calorifere
Aer conditionat
Izolatie Exterior
Bloc izolat termic
Vopsea lavabila
Faianta
Tapet
Gresie
Ferestre PVC
Usa intrare Metal
Usa interior Lemn
Debara
Bucatarie Mobilata
Bucatarie Utilata
Apometre
Contor gaz
Complet mobilat
Interfon
Lift
Curte comuna
Razvan Gheorghe
0732227227
Esti interesat de aceasta proprietate ?