

















2 Camere Cortina North Pipera
Bucuresti, Pipera
133.000€ + TVA
Camere
2
Suprafata utila
44.80 mp
Suprafata construita
53.76 mp
Etaj
Etaj 5
Bai
1
An constructie
2025
- ID:P9200
- Nr. camere:2
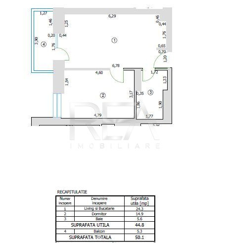
- S. utila:44.80 mp
- S. balcoane:5.30 mp
- S. utila totala:50.10 mp
- S. construita:53.76 mp
- Comp.:Semidecomandat
- Confort:1
- Etaj:Etaj 5
- Nr. bucatarii:1
- Nr. bai:1
- Nr. balcoane:1
- An constructie:2025
- Regim inaltime:P+10
Descriere
R.E.A imobiliare
Apartament 2 camere – Cortina North Pipera | 45 m² utili | Etaj 5/10 | Stil de viață premium
Descoperă un apartament modern de 2 camere, semidecomandat, situat în ansamblul rezidențial Cortina North – Pipera, un complex ce redefinește conceptul de locuire urbană prin confort, eleganță și facilități de top.
Suprafață utilă: 45 m²
Suprafață totală (cu balcon): 50 m²
Etaj: 5 din 10
Încălzire: centrală termică proprie Ariston + calorifere
Aer condiționat: LG Multisplit
Facilități premium ale ansamblului:
Centru fitness și wellness cu bazin de înot
Pistă de alergare de 1,5 km
Peste 10.000 mp de spații verzi
Galerii comerciale, cafenele și restaurante
Parcări private și acces controlat pentru siguranță sporită
Ansamblul promovează un stil de viață activ și sănătos, într-un cadru elegant și modern.
Finisaje și dotări de înaltă calitate:
Fațadă ventilată SwissPearl
Pardoseală flotantă pe balcon
Tavane Barissol cu iluminare LED
Tâmplărie din aluminiu Schüco
Ascensoare Otis
Ușă de intrare securizată Pinum Piacentini
Obiecte sanitare Daniel Rubinetterie
Uși interioare Filomuro
Parchet Balterio
Plăci ceramice Keratile
Locație ideală:
Parcul Herăstrău și Promenada Mall la doar 3–5 minute cu mașina
Stația de metrou Aurel Vlaicu și stația de autobuz – în imediata apropiere
Acces rapid către Pipera Plaza, Lidl, Kaufland, școli, grădinițe și restaurante
Preț:
Persoană juridică: 133.000 € (fără TVA)
Persoană fizică: 133.000 € + TVA 21% = 160.930 €
Un apartament perfect pentru rezidență personală sau investiție premium, într-unul dintre cele mai căutate ansambluri din nordul capitalei.
Opțiuni Suplimentare: Se accepta toate modalitatile de plata. Informatiile tehnice au caracter orientativ, acestea fiind preluate de la proprietari. În concluzie, acest apartament reprezintă o oportunitate excelentă pentru cei care caută confort, modernitate și accesibilitate într-o zonă bine cotată din București. Vă invităm să programați o vizionare și să explorați toate beneficiile acestui spațiu, ne puteti contacta telefonic, specificand codul de identificare : P9200
Citeste mai mult
Apartament 2 camere – Cortina North Pipera | 45 m² utili | Etaj 5/10 | Stil de viață premium
Descoperă un apartament modern de 2 camere, semidecomandat, situat în ansamblul rezidențial Cortina North – Pipera, un complex ce redefinește conceptul de locuire urbană prin confort, eleganță și facilități de top.
Suprafață utilă: 45 m²
Suprafață totală (cu balcon): 50 m²
Etaj: 5 din 10
Încălzire: centrală termică proprie Ariston + calorifere
Aer condiționat: LG Multisplit
Facilități premium ale ansamblului:
Centru fitness și wellness cu bazin de înot
Pistă de alergare de 1,5 km
Peste 10.000 mp de spații verzi
Galerii comerciale, cafenele și restaurante
Parcări private și acces controlat pentru siguranță sporită
Ansamblul promovează un stil de viață activ și sănătos, într-un cadru elegant și modern.
Finisaje și dotări de înaltă calitate:
Fațadă ventilată SwissPearl
Pardoseală flotantă pe balcon
Tavane Barissol cu iluminare LED
Tâmplărie din aluminiu Schüco
Ascensoare Otis
Ușă de intrare securizată Pinum Piacentini
Obiecte sanitare Daniel Rubinetterie
Uși interioare Filomuro
Parchet Balterio
Plăci ceramice Keratile
Locație ideală:
Parcul Herăstrău și Promenada Mall la doar 3–5 minute cu mașina
Stația de metrou Aurel Vlaicu și stația de autobuz – în imediata apropiere
Acces rapid către Pipera Plaza, Lidl, Kaufland, școli, grădinițe și restaurante
Preț:
Persoană juridică: 133.000 € (fără TVA)
Persoană fizică: 133.000 € + TVA 21% = 160.930 €
Un apartament perfect pentru rezidență personală sau investiție premium, într-unul dintre cele mai căutate ansambluri din nordul capitalei.
Opțiuni Suplimentare: Se accepta toate modalitatile de plata. Informatiile tehnice au caracter orientativ, acestea fiind preluate de la proprietari. În concluzie, acest apartament reprezintă o oportunitate excelentă pentru cei care caută confort, modernitate și accesibilitate într-o zonă bine cotată din București. Vă invităm să programați o vizionare și să explorați toate beneficiile acestui spațiu, ne puteti contacta telefonic, specificand codul de identificare : P9200
Specificatii
Curent
Apa
Canalizare
Acces internet
Centrala proprie
Calorifere
Aer conditionat
Bloc izolat termic
Vopsea lavabila
Parchet
Gresie
Ferestre Termopan
Usa intrare Metal
Usa interior Lemn
Bucatarie Nemobilata
Apometre
Contor caldura
Contor gaz
Nemobilat
Interfon
Lift
Sauna
SPA
Curte
Gradina
Piscina interioara
Giulia Pivoda
0732227227
Esti interesat de aceasta proprietate ?