














3 camere in vila langa Piata Floreasca
Bucuresti, Floreasca
900€
Camere
3
Suprafata utila
62.85 mp
Suprafata construita
80.79 mp
Etaj
Etaj 1
Bai
1
An constructie
1940
- ID:P8774
- Nr. camere:3
- S. utila:62.85 mp
- S. balcoane:4.48 mp
- S. utila totala:67.33 mp
- S. construita:80.79 mp
- Comp.:Semidecomandat
- Confort:1
- Etaj:Etaj 1
- Nr. bucatarii:1
- Nr. bai:1
- Nr. balcoane:1
- An constructie:1940
- An renovare:2020
- Structura:Beton
- Tip imobil:Casa/Vila
- Regim inaltime:S+P+1+M
- Orientare:Sud-Vest
Descriere
R.E.A. Imobiliare
3 camere, semidecomandat, la etajul 1 din 1+M, într-o vila renovata in anul 2020, in vecinatatea Piata Floreasca, One Tower si Vacamuuu.
- Suprafață totala de 67,33 mp: 62,85 mp utili+ 4,48 mp balcon.
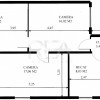
- Configurație: 3 camere, bucătărie, hol, baie si balcon.
- Incalzire prin calorifere, centrala proprie.
- Partial mobilat si utilat.
- Pretul chiriei lunare este de 900 EUR + utilitati sau 1100 EUR/lună cu toate utilitățile incluse( curent, apă, gaz, internet).
Acces la transportul public: 2 minute pana la statiile STB si 12 minute pana la metrou Stefan cel Mare.
Pentru detalii si vizionari, vă rugăm să ne contactați, specificand codul de identificare P8774.
Citeste mai mult
3 camere, semidecomandat, la etajul 1 din 1+M, într-o vila renovata in anul 2020, in vecinatatea Piata Floreasca, One Tower si Vacamuuu.
- Suprafață totala de 67,33 mp: 62,85 mp utili+ 4,48 mp balcon.
- Configurație: 3 camere, bucătărie, hol, baie si balcon.
- Incalzire prin calorifere, centrala proprie.
- Partial mobilat si utilat.
- Pretul chiriei lunare este de 900 EUR + utilitati sau 1100 EUR/lună cu toate utilitățile incluse( curent, apă, gaz, internet).
Acces la transportul public: 2 minute pana la statiile STB si 12 minute pana la metrou Stefan cel Mare.
Pentru detalii si vizionari, vă rugăm să ne contactați, specificand codul de identificare P8774.
Specificatii
Curent
Apa
Canalizare
Gaz
Telefon
Acces internet
Fibra optica
Utilitati in zona
Centrala proprie
Calorifere
Aer conditionat
Izolatie Exterior
Bloc izolat termic
Vopsea lavabila
Faianta
Parchet
Gresie
Ferestre Termopan
Jaluzele Verticale
Rulouri PVC
Usa intrare Metal
Usa interior Lemn
Bucatarie Mobilata
Bucatarie Utilata
Apometre
Contor gaz
Partial mobilat
Interfon
Curte comuna
Vladislav Chirev
0732227227
Esti interesat de aceasta proprietate ?