







Aceasta proprietate a fost deja vanduta! Pentru oferte similare contactati agentul
3 Camere - Bloc Nou - Lujerului
Bucuresti, Lujerului
130.000€
Camere
3
Suprafata utila
78 mp
Suprafata construita
93 mp
Etaj
Etaj 2
Bai
2
An constructie
2021
- ID:P155
- Nr. camere:3
- S. utila:78.00 mp
- S. construita:93.00 mp
- Comp.:Semidecomandat
- Confort:1
- Etaj:Etaj 2
- Nr. bucatarii:1
- Nr. bai:2
- Nr. balcoane:2
- An constructie:2021
- Structura:Caramida
- Tip imobil:Bloc
- Regim inaltime:P+3
Descriere
REA Imobiliare va ofera spre vanzare un apartament cu 3 camere, senidecomandat, situat in zona Lujerului.
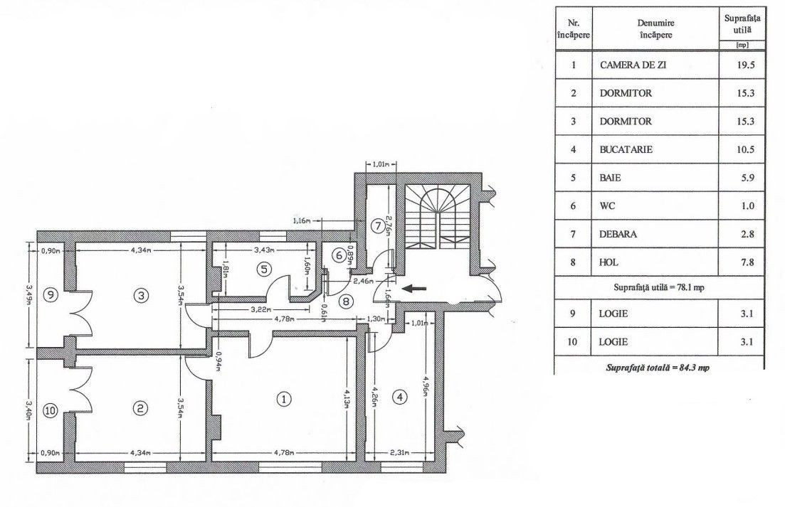
Imobilul se afla intr-un bloc de apartamente, construit in anul 2021, la etajul 2/3, detine o suprafata totala de 84m.p, din care suprafata utila este 78 m.p. si două balcoane in suprafata de 6 m.p.
Locuinta este alcatuita din două dormitoare, un living, o bucatarie, două băi, un hol și două balcoane.
Apartamentul este nou si se vinde nemobilat.
Confortul termic este realizat cu ajutorul centralei proprii pe gaz.
In imediata apropiere se intalnesc puncte farmaceutice, medicale, comerciale, educationale, de divertisment, bancare, parcuri, piete etc.
Accesul la mijloacele de transport in comun facil: 10 minute pana la statia de metrou Lujerului și 8 minute până la stația de autobuz/troleibuz.
Se accepta toate modalitatile de plata.
Informatiile tehnice au caracter orientativ, acestea fiind preluate de la proprietari.
Pentru mai multe detalii si vizionari, ne puteti contacta telefonic, specificand codul de identificare CP1604858
Citeste mai mult
Imobilul se afla intr-un bloc de apartamente, construit in anul 2021, la etajul 2/3, detine o suprafata totala de 84m.p, din care suprafata utila este 78 m.p. si două balcoane in suprafata de 6 m.p.
Locuinta este alcatuita din două dormitoare, un living, o bucatarie, două băi, un hol și două balcoane.
Apartamentul este nou si se vinde nemobilat.
Confortul termic este realizat cu ajutorul centralei proprii pe gaz.
In imediata apropiere se intalnesc puncte farmaceutice, medicale, comerciale, educationale, de divertisment, bancare, parcuri, piete etc.
Accesul la mijloacele de transport in comun facil: 10 minute pana la statia de metrou Lujerului și 8 minute până la stația de autobuz/troleibuz.
Se accepta toate modalitatile de plata.
Informatiile tehnice au caracter orientativ, acestea fiind preluate de la proprietari.
Pentru mai multe detalii si vizionari, ne puteti contacta telefonic, specificand codul de identificare CP1604858
Specificatii
Curent
Apa
Gaz
Canalizare
Centrala proprie
Calorifere
Izolatie Exterior
Vopsea lavabila
Faianta
Gresie
Ferestre Termopan
Usa intrare Metal
Usa interior Lemn
Wc serviciu
Contor gaz
Apometre
Nemobilat
George Mihai Niculcea
0732227227
Esti interesat de aceasta proprietate ?