













Aceasta proprietate a fost deja vanduta! Pentru oferte similare contactati agentul
Apartament cu 4 camere la 8 minute de stația de metrou Piața Muncii
Bucuresti, Decebal
345.000€
Camere
4
Suprafata utila
76.50 mp
Suprafata construita
91.80 mp
Etaj
Etaj 2
Bai
2
An constructie
1997
- ID:P9123
- Nr. camere:4
- S. utila:76.50 mp
- S. balcoane:5.00 mp
- S. terase:20.00 mp
- S. utila totala:101.50 mp
- S. construita:91.80 mp
- Comp.:Decomandat
- Confort:1
- Etaj:Etaj 2
- Nr. bucatarii:1
- Nr. bai:2
- Nr. balcoane:1
- An constructie:1997
- Tip imobil:Bloc
- Regim inaltime:P+8
Descriere
R.E.A Imobiliare vă invită să vizionați un apartament cu 4 camere la 550 de metri de stația de metrou Piața Muncii,ceea ce înseamnă că după ce mergeți doar 5 minute pe jos o să ajungeți la mijlocul de transport.
Locuința este situată la etajul 2 din 8 al blocului construit în anul 1997 și se mai învecinează cu:magazine alimentare,cabinete stomatologice,restaurante,două clinici privată,farmacii,o școală de baschet,o școașă gimnazială,stațiile pentru autobuzul 104 și trolebuzele 70 și 79,farmacii,cabinete veterinare,un centru pentru formarea profesională,o benzinărie,o sală de fitness,stația pentru autobuzele 640 și N109,agențiile unor bănci comerciale,stația pentru autobuzele 311 și 330,peronul pentru tramvaiul 10,dar și cu stația pentru autobuzele 135 și N10.
Propietara vinde apartamentul complet mobilat și utilat,iar variantele de plată acceptate de aceasta sunt transferul bancar și creditul ipotecar.
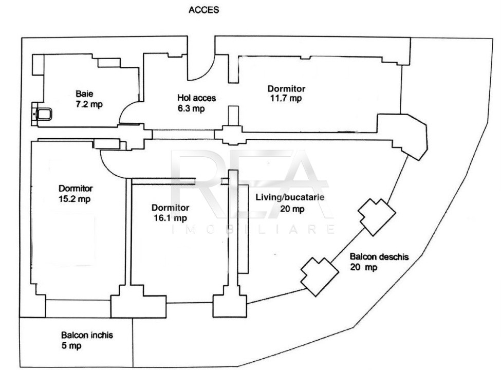
Imobilul are o suprafață totală de 101,5 mp și sunt împărțiți în felul următor:
-un hol de 6,3 mp;
-baia cu 7,2 mp;
-primul dormitor măsoară 11,7 mp;
-al doilea dormitor ocupă 15,2 mp;
-iar al treilea dormitor se întinde pe 16,10 mp;
-living-ul împreună cu bucătăria au 20 de mp;
-o terasă generoasă de 20 de mp;
-un balcon închis cu geamuri termopan care nu depășește 5 mp.
Puteți programa vizionarea sunând la oricare număr de telefon afișat pe site-ul reaimobiliare.ro.Agentul imobiliar care promovează această propietate o să vă apeleze în cel mai scurt timp posibil. P9123
Citeste mai mult
Locuința este situată la etajul 2 din 8 al blocului construit în anul 1997 și se mai învecinează cu:magazine alimentare,cabinete stomatologice,restaurante,două clinici privată,farmacii,o școală de baschet,o școașă gimnazială,stațiile pentru autobuzul 104 și trolebuzele 70 și 79,farmacii,cabinete veterinare,un centru pentru formarea profesională,o benzinărie,o sală de fitness,stația pentru autobuzele 640 și N109,agențiile unor bănci comerciale,stația pentru autobuzele 311 și 330,peronul pentru tramvaiul 10,dar și cu stația pentru autobuzele 135 și N10.
Propietara vinde apartamentul complet mobilat și utilat,iar variantele de plată acceptate de aceasta sunt transferul bancar și creditul ipotecar.
Imobilul are o suprafață totală de 101,5 mp și sunt împărțiți în felul următor:
-un hol de 6,3 mp;
-baia cu 7,2 mp;
-primul dormitor măsoară 11,7 mp;
-al doilea dormitor ocupă 15,2 mp;
-iar al treilea dormitor se întinde pe 16,10 mp;
-living-ul împreună cu bucătăria au 20 de mp;
-o terasă generoasă de 20 de mp;
-un balcon închis cu geamuri termopan care nu depășește 5 mp.
Puteți programa vizionarea sunând la oricare număr de telefon afișat pe site-ul reaimobiliare.ro.Agentul imobiliar care promovează această propietate o să vă apeleze în cel mai scurt timp posibil. P9123
Specificatii
Curent
Apa
Canalizare
Gaz
Termoficare
Calorifere
Aer conditionat
Izolatie Exterior
Izolatie Interior
Bloc izolat termic
Vopsea lavabila
Parchet
Gresie
Ferestre Termopan
Usa intrare Metal
Usa interior Lemn
Terasa
Debara
Dressing
Bucatarie Mobilata
Apometre
Contor caldura
Contor gaz
Complet mobilat
Interfon
Lift
Esti interesat de aceasta proprietate ?