



















4 camere în One Lake Club lângă Promenada Mall
Bucuresti, Floreasca
550.000€ + TVA
Camere
4
Suprafata utila
107.40 mp
Suprafata construita
160.13 mp
Etaj
Etaj 2
Bai
3
Parcari
2
- ID:P9473
- Nr. camere:4
- S. utila:107.40 mp
- S. balcoane:29.12 mp
- S. utila totala:136.52 mp
- S. construita:160.13 mp
- Comp.:Decomandat
- Confort:1
- Etaj:Etaj 2
- Nr. bucatarii:1
- Nr. bai:3
- Nr. balcoane:1
- Nr. parcari:2
- An constructie:2025
- Structura:Beton
- Tip imobil:Bloc
- Regim inaltime:S+P+9
- Orientare:Sud
- Clasa energetica:A
Descriere
R.E.A. Imobiliare
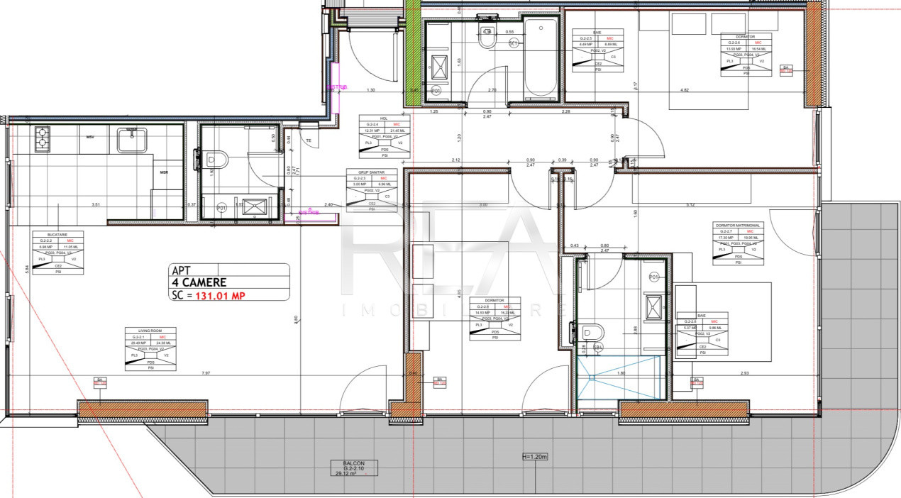
Apartament 4 camere, decomandat, la etajul 2 din 9, în complexul rezidențial One Lake Club, care oferă peste 7.000 mp de spații de relaxare, loc de joacă pentru copii, sală de sport, pază 24/7 și spații comerciale pentru confortul zilnic, construit în anul 2025.
- Suprafață totală de 136,52 mp: 107,4 mp utili+ 29,12 mp balcon.
- Configurație: 3 dormitoare, living cu bucătărie open space, hol, 3 băi și balcon.
- Încălzire în pardoseală asigurată de centrala de imobil și climatizare prin ventiloconvectoare.
Preț 550.000 EUR + TVA ( sau 665.500 EUR TVA inclus ). Opțional, 2 locuri de parcare subterane sunt disponibile pentru achiziție.
Acces rapid la transportul public: 3 minute până la statiile STB, 12 minute până la metrou Pipera.
Localizare: pe malul Lacului Tei, la câțiva pași de Hotel Caro, Muzeul Aviației, Globalworth și Promenada Mall, cu acces rapid la Șoseaua Fabrica de Glucoză, Barbu Vacărescu, Floreasca, Parcul Herăstrau, Autostrada A3 București-Ploiești și Aeroportul International Henri Coandă.
Contactează-ne pentru detalii suplimentare și programarea unei vizionări private. Cod proprietate P9473.
Citeste mai mult
Apartament 4 camere, decomandat, la etajul 2 din 9, în complexul rezidențial One Lake Club, care oferă peste 7.000 mp de spații de relaxare, loc de joacă pentru copii, sală de sport, pază 24/7 și spații comerciale pentru confortul zilnic, construit în anul 2025.
- Suprafață totală de 136,52 mp: 107,4 mp utili+ 29,12 mp balcon.
- Configurație: 3 dormitoare, living cu bucătărie open space, hol, 3 băi și balcon.
- Încălzire în pardoseală asigurată de centrala de imobil și climatizare prin ventiloconvectoare.
Preț 550.000 EUR + TVA ( sau 665.500 EUR TVA inclus ). Opțional, 2 locuri de parcare subterane sunt disponibile pentru achiziție.
Acces rapid la transportul public: 3 minute până la statiile STB, 12 minute până la metrou Pipera.
Localizare: pe malul Lacului Tei, la câțiva pași de Hotel Caro, Muzeul Aviației, Globalworth și Promenada Mall, cu acces rapid la Șoseaua Fabrica de Glucoză, Barbu Vacărescu, Floreasca, Parcul Herăstrau, Autostrada A3 București-Ploiești și Aeroportul International Henri Coandă.
Contactează-ne pentru detalii suplimentare și programarea unei vizionări private. Cod proprietate P9473.
Specificatii
Curent
Apa
Canalizare
Gaz
CATV
Acces internet
Fibra optica
Utilitati in zona
Centrala imobil
Incalzire pardoseala
Ventiloconvectoare
Izolatie Exterior
Bloc izolat termic
Vopsea lavabila
Faianta
Parchet
Gresie
Ferestre Aluminiu
Usa intrare Metal
Usa interior Lemn
Bucatarie Nemobilata
Bucatarie Neutilata
Apometre
Contor caldura
Contor gaz
Nemobilat
Videointerfon
Lift
Spatii agrement
Vladislav Chirev
0732227227
Esti interesat de aceasta proprietate ?