











Aceasta proprietate a fost deja vanduta! Pentru oferte similare contactati agentul
4 Camere 106 m.p. | Parcare | Cotroceni Smart Residence - Zona Grozavesti
Bucuresti, Grozavesti
325.000€ + TVA
Camere
4
Suprafata utila
97.20 mp
Suprafata construita
125 mp
Etaj
Etaj 12
Bai
2
Parcari
1
- ID:P9207
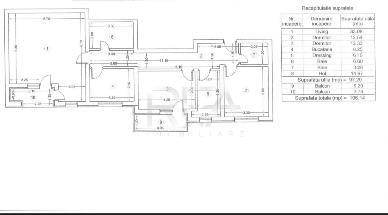
- Nr. camere:4
- S. utila:97.20 mp
- S. balcoane:8.94 mp
- S. utila totala:106.14 mp
- S. construita:125.00 mp
- Comp.:Decomandat
- Confort:Lux
- Etaj:Etaj 12
- Nr. bucatarii:1
- Nr. bai:2
- Nr. balcoane:2
- Nr. parcari:1
- An constructie:2018
- Structura:Caramida
- Tip imobil:Bloc
- Regim inaltime:P+12
Descriere
Pretul este + TVA!!!
REA Imobiliare va ofera spre vanzare un apartament cu 4 camere, situat in zona Grozavesti, in vecinatatea sectiei 3 Politie.
Imobilul se afla intr-un bloc de apartamente, construit in anul 2018, la etajul 12/12 si detine o suprafata totala de 106.14 m.p, din care suprafata utila este 97.2 m.p si balcoane in suprafata de 8.94 m.p.
Locuinta este alcatuita din doua dormitoare, un living, o camera dressing, o bucatarie, un hol, doua bai si doua balcoane.
Apartamentul se vinde complet mobilat si utilat.
Locul de parcare se afla la subteran, iar pretul acestuia este 20.000 euro + tva.
Confortul termic este realizat cu ajutorul centralei proprii pe gaz.
In imediata apropiere se intalnesc puncte farmaceutice, medicale, comerciale, educationale, de divertisment, bancare, parcuri.
Accesul la mijloacele de transport in comun facil 5 minute pana la statia STB Facultatea de Filosofie sau 10-12 minute pana la statia de metrou Grozavesti.
Se accepta toate modalitatile de plata.
Informatiile tehnice au caracter orientativ, acestea fiind preluate de la proprietari.
Pentru mai multe detalii si vizionari, ne puteti contacta telefonic, specificand codul de identificare P9207
Citeste mai mult
REA Imobiliare va ofera spre vanzare un apartament cu 4 camere, situat in zona Grozavesti, in vecinatatea sectiei 3 Politie.
Imobilul se afla intr-un bloc de apartamente, construit in anul 2018, la etajul 12/12 si detine o suprafata totala de 106.14 m.p, din care suprafata utila este 97.2 m.p si balcoane in suprafata de 8.94 m.p.
Locuinta este alcatuita din doua dormitoare, un living, o camera dressing, o bucatarie, un hol, doua bai si doua balcoane.
Apartamentul se vinde complet mobilat si utilat.
Locul de parcare se afla la subteran, iar pretul acestuia este 20.000 euro + tva.
Confortul termic este realizat cu ajutorul centralei proprii pe gaz.
In imediata apropiere se intalnesc puncte farmaceutice, medicale, comerciale, educationale, de divertisment, bancare, parcuri.
Accesul la mijloacele de transport in comun facil 5 minute pana la statia STB Facultatea de Filosofie sau 10-12 minute pana la statia de metrou Grozavesti.
Se accepta toate modalitatile de plata.
Informatiile tehnice au caracter orientativ, acestea fiind preluate de la proprietari.
Pentru mai multe detalii si vizionari, ne puteti contacta telefonic, specificand codul de identificare P9207
Specificatii
Curent
Apa
Canalizare
Gaz
Fibra optica
Centrala proprie
Calorifere
Aer conditionat
Izolatie Exterior
Bloc izolat termic
Vopsea lavabila
Faianta
Parchet
Gresie
Ferestre Termopan
Usa intrare Metal
Usa interior Lemn
Wc serviciu
Dressing
Bucatarie Mobilata
Bucatarie Utilata
Apometre
Contor caldura
Contor gaz
Complet mobilat
Interfon
Lift
Georgiana Lixandru
0732227227
Esti interesat de aceasta proprietate ?