
















Aceasta proprietate a fost deja vanduta! Pentru oferte similare contactati agentul
Duplex 2 Apartamente | Disponibil pentru mutare | Uverturii |
Bucuresti, Uverturii
190.000€
Camere
4
Suprafata utila
117 mp
Suprafata construita
140 mp
Etaj
Parter
Bai
2
Parcari
2
- ID:P4463
- Nr. camere:4
- S. utila:117.00 mp
- S. terase:2.50 mp
- S. utila totala:119.50 mp
- S. construita:140.00 mp
- Comp.:Semidecomandat
- Confort:1
- Etaj:Parter
- Nr. bucatarii:2
- Nr. bai:2
- Nr. parcari:2
- An constructie:2017
- Regim inaltime:P+4
- Orientare:Sud
Descriere
R.E.A. Imobiliare
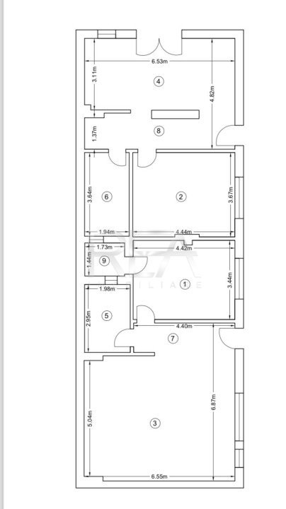
Duplex cu 2 Apartamente de cate 2 camere fiecare si intrari separate, semidecomandat, la parter/4, în zona Uverturii, finalizat în anul 2017.
Suprafata totala de 120 m.p, din care suprafata utila 117 m.p, terasa 2,5 m.p.
Configuratie: living + bucatarie open space , dormitor, hol si baie + curte si terasa comune. De asemenea se preteaza a fi folosit ca si spatiu comercial, salon de infrumusetare sau cabinet.
Incalzire prin calorifere, centrala proprie.
Vecinatatile includ: Lacul Morii, Mall Plaza, Mall Afi Cotroceni, Carrefour Lujerului, Complex SIR, Parcul Liniei, Acces rapid catre Splai.
Acces la transportul în comun-> 2 minute pana la statiile STB sau 7 minute pana la metrou Gorjului, metrou Lujerului.
Pentru detalii si vizionari, vă rugăm să ne contactați, specificand codul de identificare P4463.
Citeste mai mult
Duplex cu 2 Apartamente de cate 2 camere fiecare si intrari separate, semidecomandat, la parter/4, în zona Uverturii, finalizat în anul 2017.
Suprafata totala de 120 m.p, din care suprafata utila 117 m.p, terasa 2,5 m.p.
Configuratie: living + bucatarie open space , dormitor, hol si baie + curte si terasa comune. De asemenea se preteaza a fi folosit ca si spatiu comercial, salon de infrumusetare sau cabinet.
Incalzire prin calorifere, centrala proprie.
Vecinatatile includ: Lacul Morii, Mall Plaza, Mall Afi Cotroceni, Carrefour Lujerului, Complex SIR, Parcul Liniei, Acces rapid catre Splai.
Acces la transportul în comun-> 2 minute pana la statiile STB sau 7 minute pana la metrou Gorjului, metrou Lujerului.
Pentru detalii si vizionari, vă rugăm să ne contactați, specificand codul de identificare P4463.
Specificatii
Curent
Apa
Canalizare
Gaz
Termoficare
Centrala proprie
Izolatie Exterior
Vopsea lavabila
Faianta
Lambriu
Parchet
Gresie
Mocheta
Ferestre PVC
Ferestre Termopan
Usa intrare Metal
Usa interior Celulare
Terasa
Dressing
Bucatarie Mobilata
Bucatarie Utilata
Complet mobilat
Georgiana Lixandru
0732227227
Esti interesat de aceasta proprietate ?