






















Penthouse - ONE Herastrau Towers
Bucuresti, Herastrau
1.999.000€ + TVA
Camere
5
Suprafata utila
274.89 mp
Suprafata construita
346.70 mp
Etaj
Etaj 11
Bai
4
Parcari
3
- ID:P7664
- Nr. camere:5
- S. utila:274.89 mp
- S. terase:28.02 mp
- S. utila totala:302.91 mp
- S. construita:346.70 mp
- Comp.:Decomandat
- Confort:Lux
- Etaj:Etaj 11
- Nr. bucatarii:1
- Nr. bai:4
- Nr. parcari:3
- An constructie:2021
- An renovare:2025
- Structura:Beton
- Tip imobil:Bloc
- Regim inaltime:S+P+12
- Orientare:Nord-Vest
- Clasa energetica:A
Descriere
R.E.A. Imobiliare vă propune spre achiziție un penthouse exclusivist, situat în prestigiosul ansamblu rezidențial ONE Herăstrău Towers, un reper al eleganței urbane și al stilului de viață rafinat.
Localizare de top: În inima nordului Capitalei, la doar câțiva pași de Parcul Herăstrău și zona de business Pipera–Aviației, cu acces rapid către aeroport, restaurante fine dining, școli internaționale și centre comerciale.
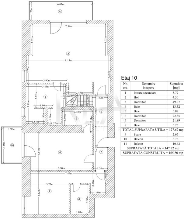
Proprietate remarcabilă, desfășurată pe două niveluri (etajele 10 și 11):
- Suprafață utilă de 275 mp + trei terase generoase, ajungând la un total de 311 mp
- 5 camere spațioase: 3 dormitoare, un living spectaculos si camera de dining sau spațiu multifuncțional
- 4 băi moderne, amenajate cu materiale de înaltă calitate
- 3 locuri de parcare subterană pentru achizitie.
Design de excepție & dotări premium:
- Mobilier custom realizat la comandă, electrocasnice de top și finisaje de lux
- Tavane înalte și suprafețe vitrate pe întreaga fațadă pentru o lumină naturală maximă și vedere panoramică spectaculoasă asupra orașului și lacului Herăstrău
- Terase perfecte pentru relaxare și socializare.
Avantaje ale ansamblului ONE Herăstrău Towers:
- Clădire certificată Green Homes, cu eficiență energetică ridicată
- Servicii de concierge și pază 24/7
- Spații comerciale în incintă (cafenele, restaurante, supermarket)
- Arhitectură modernă semnată de birouri de renume
- Comunitate exclusivistă, cu acces controlat și intimitate garantată
O alegere ideală pentru cei care apreciază luxul autentic, confortul fără compromisuri și o locație de excepție.
Contactează R.E.A. Imobiliare pentru detalii suplimentare și programarea unei vizionări private. Proprietăți de acest calibru sunt rare — acest penthouse este un veritabil statement de stil și eleganță urbană. Cod proprietate P7664
Citeste mai mult
Localizare de top: În inima nordului Capitalei, la doar câțiva pași de Parcul Herăstrău și zona de business Pipera–Aviației, cu acces rapid către aeroport, restaurante fine dining, școli internaționale și centre comerciale.
Proprietate remarcabilă, desfășurată pe două niveluri (etajele 10 și 11):
- Suprafață utilă de 275 mp + trei terase generoase, ajungând la un total de 311 mp
- 5 camere spațioase: 3 dormitoare, un living spectaculos si camera de dining sau spațiu multifuncțional
- 4 băi moderne, amenajate cu materiale de înaltă calitate
- 3 locuri de parcare subterană pentru achizitie.
Design de excepție & dotări premium:
- Mobilier custom realizat la comandă, electrocasnice de top și finisaje de lux
- Tavane înalte și suprafețe vitrate pe întreaga fațadă pentru o lumină naturală maximă și vedere panoramică spectaculoasă asupra orașului și lacului Herăstrău
- Terase perfecte pentru relaxare și socializare.
Avantaje ale ansamblului ONE Herăstrău Towers:
- Clădire certificată Green Homes, cu eficiență energetică ridicată
- Servicii de concierge și pază 24/7
- Spații comerciale în incintă (cafenele, restaurante, supermarket)
- Arhitectură modernă semnată de birouri de renume
- Comunitate exclusivistă, cu acces controlat și intimitate garantată
O alegere ideală pentru cei care apreciază luxul autentic, confortul fără compromisuri și o locație de excepție.
Contactează R.E.A. Imobiliare pentru detalii suplimentare și programarea unei vizionări private. Proprietăți de acest calibru sunt rare — acest penthouse este un veritabil statement de stil și eleganță urbană. Cod proprietate P7664
Specificatii
Curent
Apa
Canalizare
Gaz
CATV
Telefon
Acces internet
Fibra optica
Utilitati in zona
Centrala imobil
Incalzire pardoseala
Ventiloconvectoare
Izolatie Exterior
Izolatie Interior
Bloc izolat termic
Vopsea lavabila
Faianta
Marmura
Parchet
Gresie
Ferestre Aluminiu
Usa intrare Metal
Usa interior Lemn
Terasa
Wc serviciu
Dressing
Bucatarie Mobilata
Bucatarie Utilata
Apometre
Contor caldura
Contor gaz
Mobilat Lux
Videointerfon
Lift
Spatii agrement
Curte comuna
Radu Chirev
0732227227
Esti interesat de aceasta proprietate ?