












Aceasta proprietate a fost deja vanduta! Pentru oferte similare contactati agentul
Apartament cu 3 camere, et 2/4, Baba Novac/Câmpia Libertății
Bucuresti, Baba Novac
116.990€
Camere
3
Suprafata utila
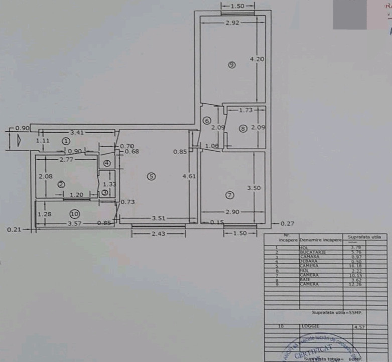
55 mp
Suprafata construita
66 mp
Etaj
Etaj 2
Bai
1
An constructie
1965
- ID:P6054
- Nr. camere:3
- S. utila:55.00 mp
- S. balcoane:5.00 mp
- S. utila totala:60.00 mp
- S. construita:66.00 mp
- Comp.:Semidecomandat
- Confort:1
- Etaj:Etaj 2
- Nr. bucatarii:1
- Nr. bai:1
- Nr. balcoane:1
- An constructie:1965
- Structura:Beton
- Tip imobil:Bloc
- Regim inaltime:P+4
Descriere
R.E.A. Imobiliare propune spre vânzare un apartament cu 3 camere, semidecomandat, situat în zona Baba Novac/Câmpia Libertății.
Apartamentul este situat într-un bloc de apartamente construit în 1965, reabilitat termic și fără risc seismic, la etajul 2 din 4. Compartimentarea include un living, două dormitoare, bucătărie, baie și balcon. Suprafața utilă a apartamentului este de 55 mp, oferind un spațiu bine compartimentat.
A fost renovat integral în urmă cu câțiva ani, inclusiv rețeaua electrică. Se vinde mobilat și utilat.
În apropiere se află magazine, bănci, farmacii, clinici, școli și zone de agrement. Acces rapid la mijloacele de transport în comun.
Disponibil pentru achiziție prin orice modalitate de plată.
Informațiile tehnice sunt cu titlu orientativ, fiind furnizate de proprietar.
Pentru detalii suplimentare și programarea unei vizionări, vă rugăm să ne contactați telefonic, menționând codul de identificare P6054.
Citeste mai mult
Apartamentul este situat într-un bloc de apartamente construit în 1965, reabilitat termic și fără risc seismic, la etajul 2 din 4. Compartimentarea include un living, două dormitoare, bucătărie, baie și balcon. Suprafața utilă a apartamentului este de 55 mp, oferind un spațiu bine compartimentat.
A fost renovat integral în urmă cu câțiva ani, inclusiv rețeaua electrică. Se vinde mobilat și utilat.
În apropiere se află magazine, bănci, farmacii, clinici, școli și zone de agrement. Acces rapid la mijloacele de transport în comun.
Disponibil pentru achiziție prin orice modalitate de plată.
Informațiile tehnice sunt cu titlu orientativ, fiind furnizate de proprietar.
Pentru detalii suplimentare și programarea unei vizionări, vă rugăm să ne contactați telefonic, menționând codul de identificare P6054.
Specificatii
Curent
Apa
Canalizare
Gaz
Acces internet
Fibra optica
Utilitati in zona
Termoficare
Calorifere
Aer conditionat
Bloc izolat termic
Vopsea lavabila
Faianta
Parchet
Gresie
Ferestre Termopan
Usa intrare Metal
Usa interior Lemn
Bucatarie Mobilata
Bucatarie Utilata
Apometre
Complet mobilat
Interfon
Lift
Valentin Ghitiu
0732227227
Esti interesat de aceasta proprietate ?