






Apartament 3 camere Nicolae Grigorescu – Strada Odobești, renovat
Bucuresti, Nicolae Grigorescu
180.000€
Camere
3
Suprafata utila
65 mp
Suprafata construita
78 mp
Etaj
Etaj 9
Bai
1
An constructie
1965
- ID:P8833
- Nr. camere:3
- S. utila:65.00 mp
- S. balcoane:6.00 mp
- S. utila totala:71.00 mp
- S. construita:78.00 mp
- Comp.:Semidecomandat
- Etaj:Etaj 9
- Nr. bucatarii:1
- Nr. bai:1
- Nr. balcoane:1
- An constructie:1965
- An renovare:2020
- Structura:Caramida
- Tip imobil:Bloc
- Regim inaltime:P+10
Descriere
R.E.A. Imobiliare vă oferă spre vânzare un apartament cu 3 camere în zona Nicolae Grigorescu, situat pe Strada Odobești, semidecomandat, într-un bloc bine întreținut și reabilitat termic.
Blocul, construit în anul 1965, este reabilitat termic și nu este încadrat în nicio categorie de risc seismic, nefiind expertizat.
Se află la etajul 9 al unui bloc cu 10 etaje și are o suprafață utilă totală de 71 mp, din care 6 mp sunt reprezentați de balcon.
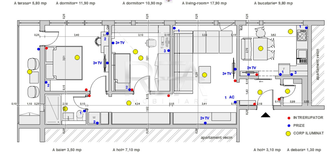
Compartimentare: living, două dormitoare, bucătărie, baie și balcon.
Renovat în anul 2020, se vinde mobilat și utilat.
Confortul termic este asigurat prin centrala proprie.
Instalațiile electrice și sanitare au fost schimbate.
Zonă pet-friendly.
În imediata apropiere se află puncte comerciale, bancare, farmaceutice, medicale, educaționale și de divertisment.
Acces facil la mijloacele de transport în comun: 8–10 minute până la stația de metrou.
Se acceptă toate modalitățile de plată.
Informațiile tehnice au caracter orientativ, acestea fiind preluate de la proprietar.
👉 Dacă sunteți în căutarea unui apartament cu 3 camere în zona Nicolae Grigorescu – Strada Odobești, nu ratați această ocazie!
Comision standard, valabil doar la cumpărare.
Pentru mai multe detalii și vizionări, nu ezitați să ne contactați, specificând codul P8833.
Citeste mai mult
Blocul, construit în anul 1965, este reabilitat termic și nu este încadrat în nicio categorie de risc seismic, nefiind expertizat.
Se află la etajul 9 al unui bloc cu 10 etaje și are o suprafață utilă totală de 71 mp, din care 6 mp sunt reprezentați de balcon.
Compartimentare: living, două dormitoare, bucătărie, baie și balcon.
Renovat în anul 2020, se vinde mobilat și utilat.
Confortul termic este asigurat prin centrala proprie.
Instalațiile electrice și sanitare au fost schimbate.
Zonă pet-friendly.
În imediata apropiere se află puncte comerciale, bancare, farmaceutice, medicale, educaționale și de divertisment.
Acces facil la mijloacele de transport în comun: 8–10 minute până la stația de metrou.
Se acceptă toate modalitățile de plată.
Informațiile tehnice au caracter orientativ, acestea fiind preluate de la proprietar.
👉 Dacă sunteți în căutarea unui apartament cu 3 camere în zona Nicolae Grigorescu – Strada Odobești, nu ratați această ocazie!
Comision standard, valabil doar la cumpărare.
Pentru mai multe detalii și vizionări, nu ezitați să ne contactați, specificând codul P8833.
Specificatii
Curent
Apa
Canalizare
Gaz
Acces internet
Fibra optica
Utilitati in zona
Centrala proprie
Calorifere
Bloc izolat termic
Vopsea lavabila
Faianta
Parchet
Gresie
Ferestre Termopan
Usa intrare Metal
Usa interior Lemn
Bucatarie Mobilata
Bucatarie Utilata
Apometre
Contor gaz
Complet mobilat
Interfon
Lift
Valentin Ghitiu
0732227227
Esti interesat de aceasta proprietate ?