






Apartament 3 camere Unirii – Bulevardul Regina Maria, mobilat complet
Bucuresti, Unirii
349.999€
Camere
3
Suprafata utila
77 mp
Suprafata construita
92 mp
Etaj
Etaj 4
Bai
2
An constructie
1992
- ID:P9084
- Nr. camere:3
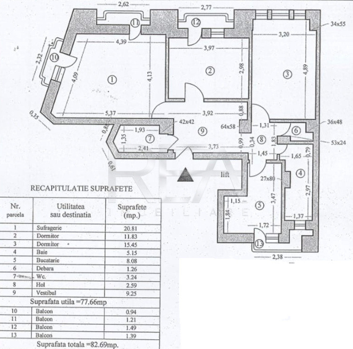
- S. utila:77.00 mp
- S. balcoane:5.00 mp
- S. utila totala:82.00 mp
- S. construita:92.00 mp
- Comp.:Decomandat
- Confort:1
- Etaj:Etaj 4
- Nr. bucatarii:1
- Nr. bai:2
- Nr. balcoane:4
- An constructie:1992
- Tip imobil:Bloc
- Regim inaltime:P+8
Descriere
R.E.A. Imobiliare vă oferă spre vânzare un apartament modern cu 3 camere decomandat în zona Unirii – Bulevardul Regina Maria, situat într-un bloc solid, construit în 1992.
Proprietatea se află la etajul 4 al unui bloc cu 8 etaje și are o suprafață utilă totală de 82 mp, din care 5 mp sunt reprezentați de cele patru balcoane.
Compartimentare: living, două dormitoare, bucătărie, două băi și patru balcoane.
Se vinde complet mobilat și utilat, cu mobilier din MDF laminat realizat cu designer de interior și parchet din lemn masiv.
Confortul termic este asigurat prin rețeaua edilitară de termoficare, dar și cu ajutorul aparatului de aer condiționat.
Zonă pet-friendly, cu acces facil la mijloacele de transport în comun: 8-10 minute până la stația de metrou.
În imediata apropiere se află puncte comerciale, bancare, farmacii, unități medicale, școli și zone de divertisment.
Se acceptă toate modalitățile de plată.
Informațiile tehnice au caracter orientativ, fiind preluate de la proprietar.
👉 Dacă sunteți în căutarea unui apartament cu 3 camere decomandat, mobilat și utilat, în zona Unirii – Bulevardul Regina Maria, această proprietate reprezintă o oportunitate excelentă!
Comision standard, valabil doar la cumpărare.
Pentru mai multe detalii și vizionări, nu ezitați să ne contactați, specificând codul P9084.
Citeste mai mult
Proprietatea se află la etajul 4 al unui bloc cu 8 etaje și are o suprafață utilă totală de 82 mp, din care 5 mp sunt reprezentați de cele patru balcoane.
Compartimentare: living, două dormitoare, bucătărie, două băi și patru balcoane.
Se vinde complet mobilat și utilat, cu mobilier din MDF laminat realizat cu designer de interior și parchet din lemn masiv.
Confortul termic este asigurat prin rețeaua edilitară de termoficare, dar și cu ajutorul aparatului de aer condiționat.
Zonă pet-friendly, cu acces facil la mijloacele de transport în comun: 8-10 minute până la stația de metrou.
În imediata apropiere se află puncte comerciale, bancare, farmacii, unități medicale, școli și zone de divertisment.
Se acceptă toate modalitățile de plată.
Informațiile tehnice au caracter orientativ, fiind preluate de la proprietar.
👉 Dacă sunteți în căutarea unui apartament cu 3 camere decomandat, mobilat și utilat, în zona Unirii – Bulevardul Regina Maria, această proprietate reprezintă o oportunitate excelentă!
Comision standard, valabil doar la cumpărare.
Pentru mai multe detalii și vizionări, nu ezitați să ne contactați, specificând codul P9084.
Specificatii
Curent
Apa
Canalizare
Gaz
Acces internet
Fibra optica
Utilitati in zona
Termoficare
Calorifere
Aer conditionat
Vopsea lavabila
Faianta
Parchet
Gresie
Ferestre Termopan
Usa intrare Metal
Usa interior Lemn
Bucatarie Mobilata
Bucatarie Utilata
Apometre
Complet mobilat
Interfon
Lift
Valentin Ghitiu
0732227227
Esti interesat de aceasta proprietate ?