














3 camere, et 3/4, bloc 2008, 108mp-Veteranilor-Lujerului.
Bucuresti, Veteranilor
189.000€
Camere
3
Suprafata utila
92 mp
Suprafata construita
110 mp
Etaj
Etaj 3
Bai
2
An constructie
2008
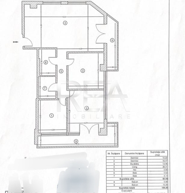
- ID:P8668
- Nr. camere:3
- S. utila:92.00 mp
- S. balcoane:16.00 mp
- S. utila totala:108.00 mp
- S. construita:110.00 mp
- Comp.:Decomandat
- Confort:1
- Etaj:Etaj 3
- Nr. bucatarii:1
- Nr. bai:2
- Nr. balcoane:2
- An constructie:2008
- Tip imobil:Bloc
- Regim inaltime:P+4
Descriere
R.E.A. Imobiliare va ofera spre vanzare un apartament cu 3 camere, decomandat, situat in zona Pietei Veteranilor, pe Str. Dealul Tugulea. Imobilul se afla intr-un bloc de apartamente construit in anul 2008, fara risc seismic, la etajul 3/4. Este alcatuit din living, doua dormitoare, bucatarie, doua bai, si doua balcoane. Suprafata totala este de 108 mp, din care suprafata utila este de 92 mp. Apartamentul se vinde nemobilat si neutilat. Confortul termic este realizat cu ajutorul centralei termice pe gaz, dar si cu ajutorul aparatului de aer conditionat. In imediata apropiere se intalnesc puncte comerciale, bancare, farmaceutice, medicale, educationale si de divertisment. Acces facil la mijloacele de transport in comun, 5 minute pana la statia Stb si metrou Lujerului. Se accepta toate modalitatiile de plata. Informatiile tehnice au caracter orientativ, acestea fiind preluate de la proprietar. Pentru mai multe detalii si vizionari, ne puteti contacta telefonic , specificand codul de identificare P8668.
Citeste mai mult
Specificatii
Curent
Apa
Canalizare
Gaz
Acces internet
Fibra optica
Utilitati in zona
Centrala proprie
Calorifere
Aer conditionat
Izolatie Exterior
Vopsea lavabila
Faianta
Parchet
Gresie
Ferestre Termopan
Usa intrare Metal
Usa interior Lemn
Wc serviciu
Debara
Bucatarie Nemobilata
Bucatarie Neutilata
Apometre
Contor caldura
Contor gaz
Nemobilat
Interfon
Veronica Ripa
0732227227
Esti interesat de aceasta proprietate ?