









Aceasta proprietate a fost deja vanduta! Pentru oferte similare contactati agentul
Apartament 4 camere Pantelimon – decomandat, mobilat și utilat, 100 mp
Bucuresti, Pantelimon
179.000€
Camere
4
Suprafata utila
86 mp
Suprafata construita
103 mp
Etaj
Etaj 7
Bai
2
An constructie
1976
- ID:P9033
- Nr. camere:4
- S. utila:86.00 mp
- S. balcoane:14.00 mp
- S. utila totala:100.00 mp
- S. construita:103.00 mp
- Comp.:Decomandat
- Confort:1
- Etaj:Etaj 7
- Nr. bucatarii:1
- Nr. bai:2
- Nr. balcoane:2
- An constructie:1976
- Tip imobil:Bloc
- Regim inaltime:P+10
Descriere
R.E.A. Imobiliare vă oferă spre vânzare un apartament cu 4 camere decomandat în zona Pantelimon, amplasat într-un bloc reabilitat, construit în 1976.
Imobilul nu este încadrat în nicio categorie de risc seismic, nefiind expertizat.
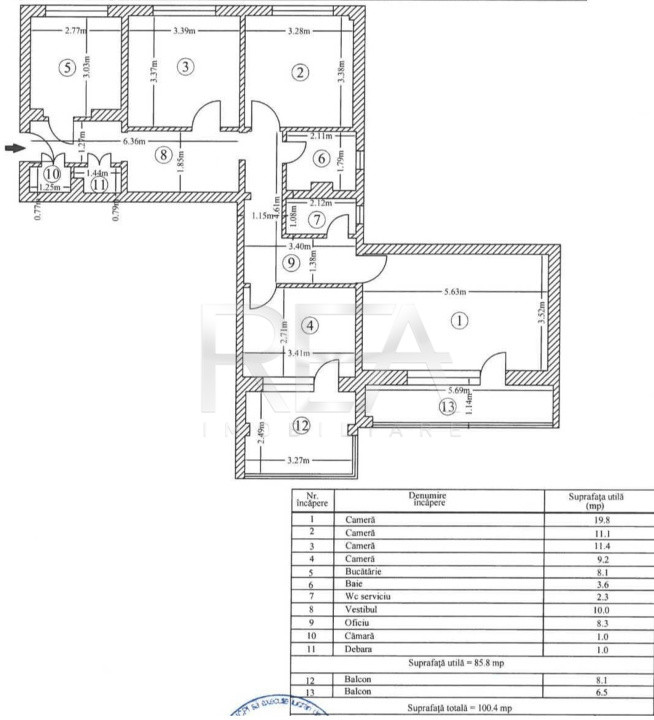
Se află la etajul 7 al unui bloc cu 10 etaje și are o suprafață utilă totală de 100 mp, din care 14 mp sunt reprezentați de cele două balcoane.
Compartimentare: living, trei dormitoare, bucătărie, două băi și două balcoane.
Se vinde complet mobilat și utilat.
Confortul termic este asigurat prin rețeaua edilitară de termoficare, dar și cu ajutorul aparatului de aer condiționat.
Multiple spații de depozitare.
Zonă pet-friendly.
În imediata apropiere se află puncte comerciale, bancare, farmaceutice, medicale, educaționale și de divertisment.
Acces facil la mijloacele de transport în comun.
Se acceptă toate modalitățile de plată.
Informațiile tehnice au caracter orientativ, acestea fiind preluate de la proprietar.
👉 Dacă sunteți în căutarea unui apartament cu 4 camere în zona Pantelimon, nu ratați această ocazie!
Comision standard, valabil doar la cumpărare.
Pentru mai multe detalii și vizionări, nu ezitați să ne contactați, specificând codul P9033.
Citeste mai mult
Imobilul nu este încadrat în nicio categorie de risc seismic, nefiind expertizat.
Se află la etajul 7 al unui bloc cu 10 etaje și are o suprafață utilă totală de 100 mp, din care 14 mp sunt reprezentați de cele două balcoane.
Compartimentare: living, trei dormitoare, bucătărie, două băi și două balcoane.
Se vinde complet mobilat și utilat.
Confortul termic este asigurat prin rețeaua edilitară de termoficare, dar și cu ajutorul aparatului de aer condiționat.
Multiple spații de depozitare.
Zonă pet-friendly.
În imediata apropiere se află puncte comerciale, bancare, farmaceutice, medicale, educaționale și de divertisment.
Acces facil la mijloacele de transport în comun.
Se acceptă toate modalitățile de plată.
Informațiile tehnice au caracter orientativ, acestea fiind preluate de la proprietar.
👉 Dacă sunteți în căutarea unui apartament cu 4 camere în zona Pantelimon, nu ratați această ocazie!
Comision standard, valabil doar la cumpărare.
Pentru mai multe detalii și vizionări, nu ezitați să ne contactați, specificând codul P9033.
Specificatii
Curent
Apa
Canalizare
Gaz
Acces internet
Fibra optica
Utilitati in zona
Termoficare
Calorifere
Aer conditionat
Bloc izolat termic
Vopsea lavabila
Faianta
Parchet
Gresie
Ferestre Termopan
Usa intrare Metal
Usa interior Lemn
Bucatarie Mobilata
Bucatarie Utilata
Apometre
Complet mobilat
Interfon
Lift
Valentin Ghitiu
0732227227
Esti interesat de aceasta proprietate ?