







Apartament 4 camere Unirii – mobilat, renovat 2023, 94 mp utili
Bucuresti, Unirii
373.000€
Camere
4
Suprafata utila
94 mp
Suprafata construita
112 mp
Etaj
Etaj 6
Bai
2
An constructie
1987
- ID:P9026
- Nr. camere:4
- S. utila:94.00 mp
- S. construita:112.00 mp
- Comp.:Semidecomandat
- Confort:1
- Etaj:Etaj 6
- Nr. bucatarii:1
- Nr. bai:2
- Nr. balcoane:2
- An constructie:1987
- An renovare:2023
- Tip imobil:Bloc
- Regim inaltime:P+7
Descriere
R.E.A. Imobiliare vă oferă spre vânzare un apartament cu 4 camere în zona Unirii, semidecomandat, amplasat aproape de Palatul Parlamentului și Piața Unirii.
Blocul este construit în 1987 și nu este încadrat în nicio categorie de risc seismic, nefiind expertizat.
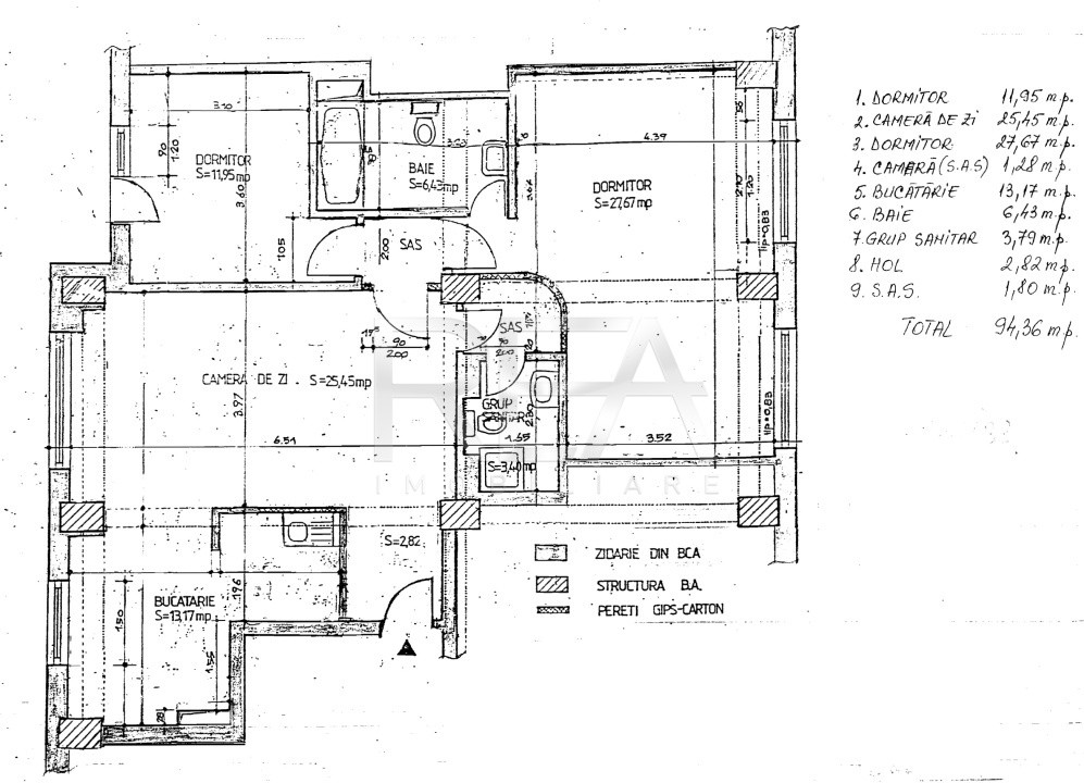
Se află la etajul 6 al unui bloc cu 7 etaje și are o suprafață utilă totală de 94 mp.
Compartimentare: living, trei dormitoare, bucătărie, două băi și două balcoane.
Renovat în anul 2023, se vinde complet mobilat și utilat.
Confortul termic este asigurat prin rețeaua edilitară de termoficare, dar și cu ajutorul aparatului de aer condiționat.
Instalațiile electrice și sanitare au fost complet schimbate.
Baia deține boiler electric.
Zonă pet-friendly.
În imediata apropiere se află puncte comerciale, bancare, farmaceutice, medicale, educaționale și de divertisment.
Acces facil la mijloacele de transport în comun: 5-6 minute până la stația de metrou.
Se acceptă toate modalitățile de plată.
Informațiile tehnice au caracter orientativ, acestea fiind preluate de la proprietar.
👉 Dacă sunteți în căutarea unui apartament cu 4 camere în zona Unirii, nu ratați această ocazie!
Comision standard, valabil doar la cumpărare.
Pentru mai multe detalii și vizionări, nu ezitați să ne contactați, specificând codul P9026.
Citeste mai mult
Blocul este construit în 1987 și nu este încadrat în nicio categorie de risc seismic, nefiind expertizat.
Se află la etajul 6 al unui bloc cu 7 etaje și are o suprafață utilă totală de 94 mp.
Compartimentare: living, trei dormitoare, bucătărie, două băi și două balcoane.
Renovat în anul 2023, se vinde complet mobilat și utilat.
Confortul termic este asigurat prin rețeaua edilitară de termoficare, dar și cu ajutorul aparatului de aer condiționat.
Instalațiile electrice și sanitare au fost complet schimbate.
Baia deține boiler electric.
Zonă pet-friendly.
În imediata apropiere se află puncte comerciale, bancare, farmaceutice, medicale, educaționale și de divertisment.
Acces facil la mijloacele de transport în comun: 5-6 minute până la stația de metrou.
Se acceptă toate modalitățile de plată.
Informațiile tehnice au caracter orientativ, acestea fiind preluate de la proprietar.
👉 Dacă sunteți în căutarea unui apartament cu 4 camere în zona Unirii, nu ratați această ocazie!
Comision standard, valabil doar la cumpărare.
Pentru mai multe detalii și vizionări, nu ezitați să ne contactați, specificând codul P9026.
Specificatii
Curent
Apa
Canalizare
Gaz
Telefon
Acces internet
Fibra optica
Utilitati in zona
Termoficare
Calorifere
Aer conditionat
Vopsea lavabila
Faianta
Parchet
Gresie
Ferestre Termopan
Usa intrare Metal
Usa interior Lemn
Bucatarie Mobilata
Bucatarie Utilata
Apometre
Complet mobilat
Interfon
Lift
Valentin Ghitiu
0732227227
Esti interesat de aceasta proprietate ?